Ana sayfa > Alüminyum Sistemler > Kış Bahçesi Sistemleri > REWG50 Yalıtımlı Kış Bahçesi Sistemi

REWG50 Yalıtımlı Kış Bahçesi Sistemi

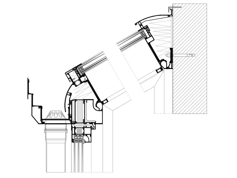
REWG50 Yalıtımlı Kış Bahçesi Sistemi

Doğaya dönüş vizyonu ile geliştirilen REWG50 sistem, kolay montaj yapılabilmesine imkan verecek prensipte tasarlanmıştır. İmalat ölçülerinin esnek ve ayarlanabilir olması sayesinde kolay aplikasyon sağlanır. Kapı, pencere ve sürme sistemleri ile entegre olarak konforlu yaşam alanları sunar

  • Max. Cam Kalınlığı: 40 mm
  • Isı Bariyerleri: 24 mm / 34 mm
  • Max. Çatı Eğimi: 45°
  • Sistem Uf Değeri : 1,84 – 7,78 w/m²K