RWT55+ Doğrama Sistemi

RWT55+ Doğrama Sistemi

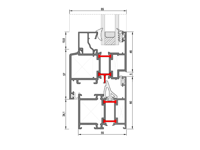
Doğrama Sistemi, vida kanalları ile imalat kolaylığı sağlayan, ekonomik ısı yalıtımlı alüminyum kapı ve pencere sistemidir. 55 mm kasa derinligine sahiptir. Normal açılım, çift eksen, vasistas, çekme-sürme, açılım aksesuarlarına uygun kanat profilleri ile iç ve dış mekanlarda kullanım kolaylığı sunmaktadır.

  • Kasa Derinliği: 55 mm
  • Kanat Derinliği:65 mm
  • Profil Et Kalınlığı: 1,6 / 2 mm
  • Max. Cam Kalınlığı: 36 mm
  • Isı Bariyeri: 14,8 mm

Elektrostatik toz boya ve eloksal yüzey işlemlerinde tüm renkler uygulanabilmektedir.