Ana sayfa > Alüminyum Sistemler > Kapı ve Pencere Sistemleri > RWT75 Yalıtımlı Doğrama Sistemi

RWT75 Yalıtımlı Doğrama Sistemi

RWT75 Yalıtımlı Doğrama Sistemi

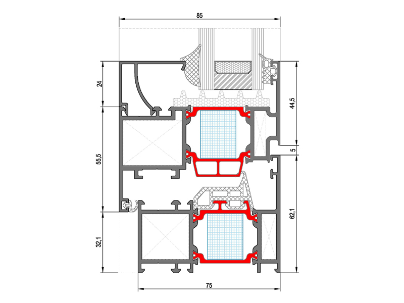
Özel yalıtım malzemeleri ile düşük uf değerleri sağlayan, yüksek ısı ve statik performanslı ısı yalıtımlı alüminyum kapı ve pencere sistemidir.75 mm kasa derinliği, 85 mm kanat derinliği; 2 mm ve 1,4 mm et kalınlığında profil seçenekleri mevcuttur.34 mm ısı bariyerine sahiptir.Normal açılım, çift eksen, vasistas, çekme sürme, pvc açılım aksesuarına uygun kanat alternatifleri mevcuttur. Isı yalıtım değeri (uf) 1,752 w/m2k dir.

  • Kasa Derinliği: 75 mm
  • Kanat Derinliği: 65 / 85 mm
  • Profil Et Kalınlığı: 1,6 / 2 mm
  • Max. Cam Kalınlığı: 48 / 58 mm
  • Isı Bariyeri: 34 mm straforlu

Elektrostatik toz boya ve eloksal yüzey işlemlerinde tüm renkler uygulanabilmektedir.