REWW141

REWW141

REWW141 Window Wall Cephe Sistemi, ticari projeler ve modern konut projeleri için zarif tasarımlar sunarken döşemeden döşemeye bağlantı yöntemleri ile alüminyum cephe tasarımında dekoratif bir görüntü sağlar.

Standart cephe sistemlerine göre yenilenmiş özel tasarımı ve montaj detay çözümleri ile iskelesiz olarak bina içinden daha kolay montaj ve ekonomik kurulum avantajı sağlar.

ASAŞ’ın mevcut, kapı, pencere ve sürme sistemleri, REWW141 sistemi içine kolay ve sorunsuz bir şekilde entegre edilebilir.

Avrupa CE ve Amerikan ASTM standartlarına uyumlu olarak tasarlanmıştır.

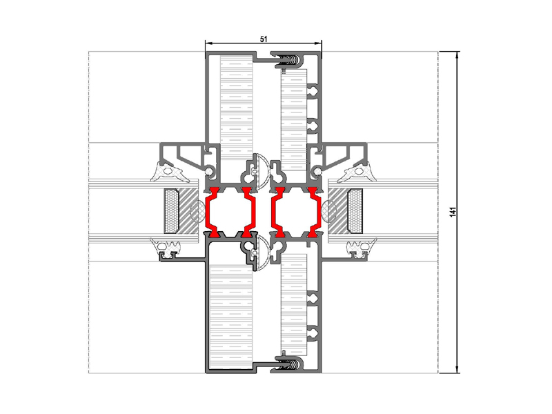
  • Profil Genişliği: 48 / 52 mm
  • Dikme Derinlikleri:141 mm
  • Isı Bariyeri:22 mm

Elektrostatik toz boya ve eloksal yüzey işlemlerinde tüm renkler uygulanabilmektedir.