RO77

RO77

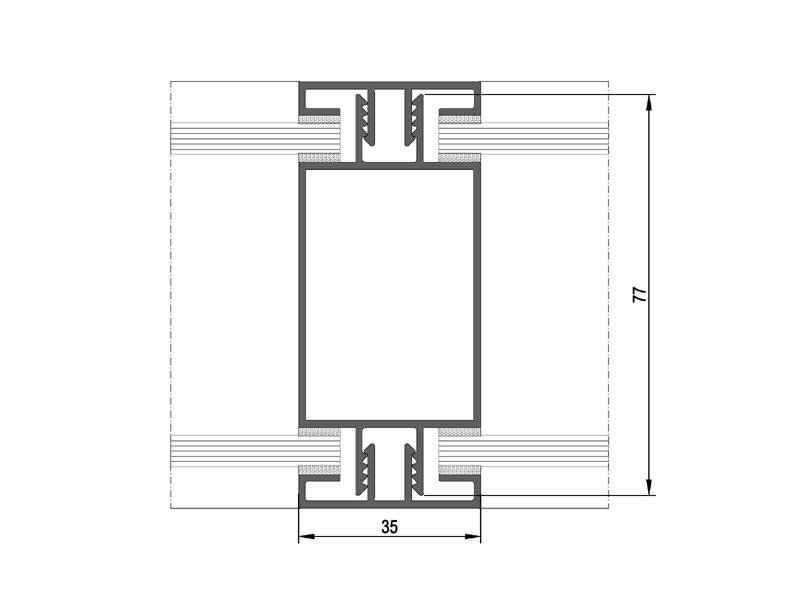
RO77 Çift Camlı Ofis Bölme Sistemi, ofislerin şekillendirilmesi için ASAŞ’ın geliştirdiği ofis bölme sistemlerindendir. RO77 Çift Camlı Ofis Bölme Sistemi, tek dikme profili ve tek kapak profiliyle 6, 8, 10 ve 12 mm cam kalınlıkları sağlanabilirken dikme profilinin uçtan uca ölçüsü 77 mm’dir ve sistem adını bu ölçüden almaktadır. Minimum sayıda profil kullanımı ile açık ofis hissini güçlendirmeyi destekler. Akustik lamine cam ve çift cam kullanımı ile ses ve ısı yalıtım etkileri arttırılabilir. Kablo kanalları ile mekan içindeki tüm aydınlatma, iletişim ve ofis araçlarına ait kabloların görünürlüğü azaltılmış olmaktadır. Ahşap bölme ve ahşap kapı alternatifleriyle ahşap görünümlü mekan elde etme imkanı sunmaktadır. Çerçeveli ve çerçevesiz cam kapı alternatifleri de bulunmaktadır. Çift cam arası jaluzi kullanımı ile iç mekanda ışık ve mahremiyet kontrolü sağlanabilir.

  • Sistem Derinliği: 82 / 88 mm
  • Sistem Yüksekliği:35 mm
  • Cam Kalınlıkları:6 / 8 / 10 / 12 mm

Elektrostatik toz boya ve eloksal yüzey işlemlerinde tüm renkler uygulanabilmektedir.