REJB50

REJB50

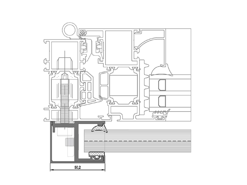
REJB50 Doğrama Önü Korkuluk Sistemi, bina cephesindeki kapı/pencerelerin (örn. Fransız balkon) önünde güvenlik bariyeri oluşturmak amacıyla kullanılmaktadır. Kapı/pencere kasasına montaj yapılarak uygulanmaktadır. Doğrudan duvar gövdesine montaj da yapılabilmektedir, ancak sistemin doğramayla birlikte çalışması uygulama açısından avantaj sağlamaktadır.

  • Sistem Derinliği: 30,5 mm - 38,5 mm
  • Profil Genişliği:50 mm
  • Cam Kalınlıkları:10,76 / 12,76 / 16,76 / 20,76 mm
  • Cam Genişliği:min. 500 mm- max. 1400 mm
  • Cam Yüksekliği:min. 800 mm - max. 1200 mm

Elektrostatik toz boya ve eloksal yüzey işlemlerinde tüm renkler uygulanabilmektedir.