Ana sayfa > Alüminyum Sistemler > Kapı ve Pencere Sistemleri > ASWM24 Sineklikli Dışa Açılım Doğrama Sistemi

ASWM24 Sineklikli Dışa Açılım Doğrama Sistemi

ASWM24 Sineklikli Dışa Açılım Doğrama Sistemi

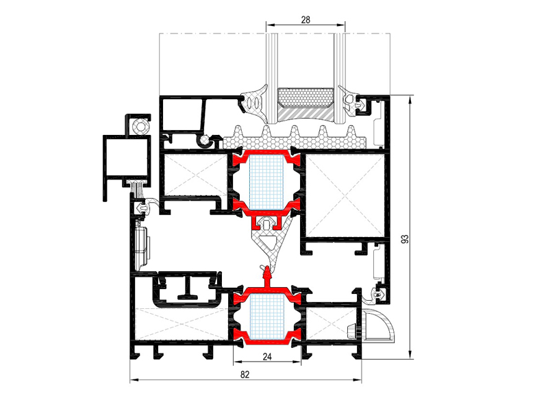
ASWM24 doğrama sistemi, sineklikli dışa açılım pencere sistemidir.

82mm kasa ve kanat derinliği, 1,8mm profil et kalınlığında profil özellikleri mevcuttur. 24~42mm arasında max. cam kalınlığı ile 24mm ısı bariyerine sahiptir.

Sistemin öne çıkan özellikleri:

  • İçte çalışan sineklik modülü
  • Kasaya entegre kol
  • Yandan (menteşeli) ve alttan (makaslı) dışa açılım tipolojisi
  • CAL köşe bağlantı alternatifi
  • Özel tij ile açılan açılım seti

  • Kasa Derinliği: 82 mm
  • Kanat Derinliği: 82 mm
  • Profil Et Kalınlığı: 1,8 mm
  • Max. Cam Kalınlığı: 24~42 mm
  • Isı Bariyeri: 24 mm

Elektrostatik toz boya ve eloksal yüzey işlemlerinde tüm renkler uygulanabilmektedir.